物件詳細
物件詳細
イーストヒルズ G棟 上尾市壱丁目東[戸建] の物件詳細ページです。
お問い合わせ番号:0000009790
4LDK
( 98.54㎡ )
15.0万円
( 0円 )
交通: 高崎線 上尾駅 バス6分 壱丁目東 バス停徒歩2分
敷金/礼金: 1ヶ月 / 1ヶ月
保証金/敷引/償却金: - / - / -
所在地: 上尾市壱丁目東
築年月:
                完成予定
2026年3月
              
ポイント
                2026年3月下旬完成予定‼駐車スペース2台付賃貸戸建。
・閑静な住宅地
・上尾道路が近くて都心へのアクセスに便利です
              
資料請求などはこちら
TEL: 048-660-5588
お問い合わせ番号: 0000009790
                 
              
スタッフからのコメント
詳細はヒロックス大宮店までお問い合わせください。
| 特徴 | ディンプルキー,保証人(不要) | ||
|---|---|---|---|
| 設備 | システムキッチン,対面式キッチン,3口以上コンロ,グリル,ガスキッチン,バス・トイレ別,追い焚き風呂,浴室乾燥,脱衣所,トイレ2ヶ所,温水洗浄便座,洗面所独立,洗面所にドア,洗面化粧台,シャワー付洗面台,エアコン,ネット使用料不要,TVインターホン,給湯,24時間換気システム,エコジョーズ,フローリング,室内洗濯機置場,クローゼット,ウォークインクローゼット,シューズウォークインクローゼット,収納有,ガス(都市ガス),下水(公共下水),水道(公営) | ||
| 天井高 | 空調 | 1基 | |
| 部屋外設備 | ベランダ | ||
| 駐車場 | 駐車場:付(無料) 舗装 屋根:無 シャッター:無 駐車並列2台 | ||
| 周辺施設 | スーパー:DAISO 上尾大谷本郷店 735m スーパー:コープ今泉店 974m コンビニ:セブンイレブン 上尾壱丁目南店 97m ショッピング施設:Ario(アリオ)上尾 1447m | ||
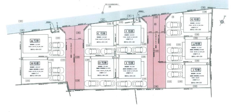
| 物件名 | イーストヒルズ G棟 | ||
|---|---|---|---|
| 物件所在地 | 埼玉県上尾市壱丁目東18 | ||
| 交通機関 | 高崎線 上尾駅 バス6分 大谷循環 壱丁目東 バス停徒歩2分 高崎線 上尾駅 徒歩38分 | ||
| 間取り詳細 | LDK(17畳) 洋室(4.5畳) 洋室(4.5畳) 洋室(5.7畳) 洋室(7.5畳) | ||
| 専有面積 | 98.54㎡ | ||
| 所在階/地上階数 | / 2 | 部屋向き | 南東 | 
| 建物構造 | 木造 | 築年月 | 完成予定 2026年3月 | 
| 総戸数 | 1 | ||
| 賃料 | 15.0万円 | 管理費等 | 0円 | 
| 敷金 | 1ヶ月 | 礼金 | 1ヶ月 | 
| 保証金 | - | 更新料 | 新賃料 1ヶ月 | 
| 積増し敷金 | 1ヶ月 | 積増し理由 | ペット可 | 
| その他一時金 | 24時間駆け付けサービス:19,800円 虫駆除サービス:22,000円 自治会費:450円 | その他費用 | |
| 損害保険 | 有 損保名称:AIG損害保険 料金:23000円 損保期間:24ヶ月 | ||
| 契約形態 | 普通借家契約 | 期間 | 契約期間:2年 | 
| 保証会社 | 必須 (日本賃貸保証) 初回保証料として総賃料の50%・継続保証料として年10,000円 | 保証人代行 | 必須 | 
| 法人契約 | 可 | ||
| 現況 | 未完成 | 入居時期 | 予定 2026年3月下旬 | 
| 入居条件 | ペット(可),事務所(不可),楽器等の使用(不可),性別(不問),子供(可),二人(可),法人(可) | ||
| IT重説 | 可 | ||
| 取引態様 | 仲介元付(専任) | 自社管理番号 | 0000009790 | 
|---|---|---|---|
| 情報更新日 | 2025年10月24日 | 次回更新予定日 | 2025年11月23日 | 
| 不動産会社コード | 2788 | 物件管理コード | 1126695143220000013140 | 
資料請求などはこちら
TEL: 048-660-5588
お問い合わせ番号: 0000009790
所在地 :
            埼玉県さいたま市北区宮原町3丁目226-3
            
 TEL :
            048-660-5588
            
 免許番号 :
            埼玉県知事(7)第17042号
            
 加盟団体 :
            全日本不動産協会