イーストヒルズ I棟 上尾市壱丁目東[戸建]

イーストヒルズ I棟 上尾市壱丁目東[戸建]

戸建[上尾市壱丁目東]

ヒロックス「さいたま市の不動産」検索・紹介サイトです

  • 9:30~営業しております/定休日:毎週水曜、第1.3.5木曜日

物件詳細

イーストヒルズ I棟 上尾市壱丁目東[戸建]

 

イーストヒルズ I棟 上尾市壱丁目東[戸建] の物件詳細ページです。

物件種別: 戸建

お問い合わせ番号:0000009792

間取り(面積)

4LDK

( 92.74㎡ )

賃料(管理費等)

14.0万円

( 0円 )

交通: 高崎線 上尾駅 バス6分 壱丁目東 バス停徒歩2分

敷金/礼金: 1ヶ月 / 1ヶ月

保証金/敷引/償却金: - / - / -

所在地: 上尾市壱丁目東

築年月: 完成予定
2026年3月

ポイント

2026年3月下旬完成予定‼駐車スペース2台付賃貸戸建。
・閑静な住宅地
・上尾道路が近くて都心へのアクセスに便利です

問い合わせ(無料)

TEL: 048-660-5588

お問い合わせ番号: 0000009792

QRコード

資料請求などはこちら

問い合わせ(無料)

TEL: 048-660-5588

お問い合わせ番号: 0000009792

スタッフからのコメント

詳細はヒロックス大宮店までお問い合わせください。

セールスポイント

特徴 ディンプルキー,保証人(不要)
設備 宅配BOX,システムキッチン,対面式キッチン,3口以上コンロ,グリル,ガスキッチン,バス・トイレ別,追い焚き風呂,浴室乾燥,脱衣所,トイレ2ヶ所,温水洗浄便座,洗面所独立,洗面所にドア,洗面化粧台,シャワー付洗面台,エアコン,ネット使用料不要,TVインターホン,給湯,24時間換気システム,エコジョーズ,フローリング,シャッター,室内洗濯機置場,クローゼット,ウォークインクローゼット,シューズウォークインクローゼット,収納有,ガス(都市ガス),下水(公共下水),水道(公営)
天井高 空調 1基
部屋外設備 ベランダ
駐車場 駐車場:付(無料) 舗装 屋根:無 シャッター:無 駐車並列2台
周辺施設 スーパー:DAISO 上尾大谷本郷店 735m
スーパー:コープ今泉店 974m
コンビニ:セブンイレブン 上尾壱丁目南店 97m
ショッピング施設:Ario(アリオ)上尾 1447m

物件概要

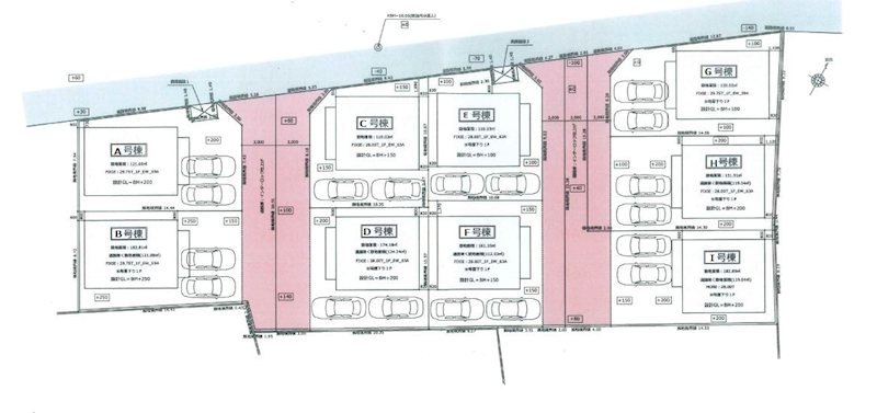
物件名 イーストヒルズ I棟
物件所在地 埼玉県上尾市壱丁目東18
交通機関 高崎線 上尾駅 バス6分 大谷循環 壱丁目東 バス停徒歩2分
高崎線 上尾駅 徒歩38分
間取り詳細 LDK(17.3畳) 洋室(4.9畳) 洋室(5.1畳) 洋室(5.4畳) 洋室(6.1畳)
専有面積 92.74㎡
所在階/地上階数 / 2 部屋向き 南東
建物構造 木造 築年月 完成予定
2026年3月
総戸数 1
賃料 14.0万円 管理費等 0円
敷金 1ヶ月 礼金 1ヶ月
保証金 - 更新料 新賃料 1ヶ月
積増し敷金 - 積増し理由
その他一時金 24時間駆け付けサービス:19,800円 虫駆除サービス:22,000円 自治会費:450円 その他費用
損害保険 有 損保名称:AIG損害保険 料金:23000円 損保期間:24ヶ月 
契約形態 普通借家契約 期間 契約期間:2年
保証会社 必須 (日本賃貸保証) 初回保証料として総賃料の50%・継続保証料として年10,000円 保証人代行 必須
法人契約
現況 未完成 入居時期 予定 2026年3月下旬
入居条件 ペット(不可),事務所(不可),楽器等の使用(不可),性別(不問),子供(可),二人(可),法人(可)
IT重説

その他

取引態様 仲介元付(専任) 自社管理番号 0000009792
情報更新日 2025年11月3日 次回更新予定日 2025年12月3日
不動産会社コード 2788 物件管理コード 1126695143220000013142
  • ※間取りの「S」はサービスルーム(納戸)です。
  • ※QRコードは(株)デンソーウェーブの登録商標です。

資料請求などはこちら

問い合わせ(無料)

TEL: 048-660-5588

お問い合わせ番号: 0000009792

お問い合わせ先:有限会社ヒロックス 大宮店

所在地 : 埼玉県さいたま市北区宮原町3丁目226-3
TEL : 048-660-5588
免許番号 : 埼玉県知事(7)第17042号
加盟団体 : 全日本不動産協会

この部屋を見学予約

ホームへ戻る