CRASTINE植竹町(クラスティーネウエタケチョウ) 103号室 さいたま市北区植竹町[アパート]

CRASTINE植竹町(クラスティーネウエタケチョウ) 103号室 さいたま市北区植竹町[アパート]

アパート[さいたま市北区植竹町]

ヒロックス「さいたま市の不動産」検索・紹介サイトです

  • 9:30~営業しております/定休日:毎週水曜、第1.3.5木曜日

物件詳細

CRASTINE植竹町(クラスティーネウエタケチョウ) 103号室 さいたま市北区植竹町[アパート]

CRASTINE植竹町(クラスティーネウエタケチョウ) 103号室 さいたま市北区植竹町[アパート] の物件詳細ページです。

物件種別: アパート

お問い合わせ番号:0000010436

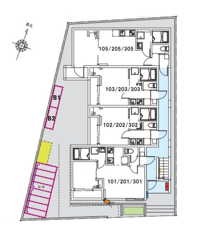
間取り(面積)

1K

( 20.06㎡ )

賃料(管理費等)

6.1万円

( 3000円 )

交通: 東武野田線 大宮公園駅 徒歩10分

敷金/礼金: - / -

保証金/敷引/償却金: - / - / -

所在地: さいたま市北区植竹町

築年月: 2023年7月

 

問い合わせ(無料)

TEL: 048-658-7788

お問い合わせ番号: 0000010436

QRコード

資料請求などはこちら

問い合わせ(無料)

TEL: 048-658-7788

お問い合わせ番号: 0000010436

セールスポイント

特徴 防犯カメラ,デザイナーズ,閑静な住宅街,オートロック,陽当たり良好,保証人(不要)
設備 敷地内ゴミ置き場,宅配BOX,システムキッチン,ガスコンロ設置済,2口コンロ,バス・トイレ別,浴室乾燥,シャワー,温水洗浄便座,洗面台,洗面所独立,エアコン,光ファイバー,ネット使用料不要,インターホン,TVインターホン,給湯,ガス給湯,24時間換気システム,フローリング,シャッター,室内洗濯機置場,洗濯機置場,シューズボックス,収納有,ガス(プロパン),下水(公共下水),水道(公営),電気
光ファイバー エレベーター
天井高 空調 1基
駐車場 駐車場:要問い合わせ 駐輪場:有 バイク置き場:有
周辺施設 スーパー:マルエツ 87m
スーパー:ヤオコー 87m
コンビニ:セブンイレブン さいたま植竹町1丁目店 404m
コンビニ:ローソン さいたま東大成町一丁目店 436m
ドラッグストア:スギドラッグ 大宮植竹店 286m

物件概要

物件名 CRASTINE植竹町(クラスティーネウエタケチョウ) 103号室
物件所在地 埼玉県さいたま市北区植竹町1丁目78-5 周辺地図
交通機関 東武野田線 大宮公園駅 徒歩10分
埼京線 大宮(埼玉)駅 徒歩27分
専有面積 20.06㎡
所在階/地上階数 1 / 3 部屋向き 西
建物構造 木造 築年月 2023年7月
総戸数 12
賃料 6.1万円 管理費等 3000円
保証金 - 更新料 新賃料 1ヶ月
積増し敷金 - 積増し理由
その他一時金 鍵交換費用:22,000円 クリーニング費用:55,000円 その他費用
その他月次費用 町会費:110円
損害保険 有 料金:2700円 
契約形態 普通借家契約 期間 契約期間:2年
保証会社 必須 利用必須【東京】総賃料の100%(支払手数料2%) 保証人代行 必須
現況 入居時期 期日指定 2025年12月21日
入居条件 高齢者(相談)

その他

取引態様 仲介先物 自社管理番号 0000010436
情報更新日 2025年12月11日 次回更新予定日 2026年1月10日
不動産会社コード 2100888 物件管理コード 1126695143220000013784
  • ※間取りの「S」はサービスルーム(納戸)です。
  • ※QRコードは(株)デンソーウェーブの登録商標です。

資料請求などはこちら

問い合わせ(無料)

TEL: 048-658-7788

お問い合わせ番号: 0000010436

お問い合わせ先:有限会社ヒロックス 大宮東口店

所在地 : 埼玉県さいたま市大宮区大門町1丁目24-1-1
TEL : 048-658-7788
免許番号 : 埼玉県知事(7)第17042号
加盟団体 : 全日本不動産保証協会

この部屋を見学予約

ホームへ戻る