オーチェ今羽 305号室 さいたま市北区吉野町[アパート]

オーチェ今羽 305号室 さいたま市北区吉野町[アパート]

アパート[さいたま市北区吉野町]

ヒロックス「さいたま市の不動産」検索・紹介サイトです

  • 9:30~営業しております/定休日:毎週水曜、第1.3.5木曜日

物件詳細

オーチェ今羽 305号室 さいたま市北区吉野町[アパート]

オーチェ今羽 305号室 さいたま市北区吉野町[アパート] の物件詳細ページです。

物件種別: アパート

お問い合わせ番号:0000011204

間取り(面積)

1K

( 20㎡ )

賃料(管理費等)

6.0万円

( 3000円 )

交通: 埼京線 大宮(埼玉)駅 バス15分 宮原二丁目北 バス停徒歩6分

敷金/礼金: - / -

保証金/敷引/償却金: - / - / -

所在地: さいたま市北区吉野町

築年月: 新築
2026年2月

ポイント

ガスコンロで毎日のお料理も楽しめます。好立地のさいたま市北区の物件ですよ。収納有/洗濯機置場/火災報知機であると設備も充実しています。快適な暮らしは有限会社ヒロックスにお任せくださいませ 素敵な1Kの物件で快適に暮らしませんか。築1年/木造/1K 素敵なお部屋です。

問い合わせ(無料)

TEL: 048-660-5588

お問い合わせ番号: 0000011204

QRコード

  • 外観

資料請求などはこちら

問い合わせ(無料)

TEL: 048-660-5588

お問い合わせ番号: 0000011204

セールスポイント

特徴 最上階,角住戸
設備 バス・トイレ別,温水洗浄便座,洗面台,エアコン,照明付き,ネット使用料不要,インターホン,TVインターホン,給湯,ガス給湯,冷房,室内洗濯機置場,洗濯機置場,全居室収納,収納有,ガス(プロパン),下水(公共下水),水道(公営),電気
天井高 空調 1基
駐車場 駐車場:有(敷地内) 11000円/月~ 駐輪場:有
周辺施設 スーパー:イマイ生鮮市場 504m
スーパー:JAPAN MEAT(ジャパン ミート) さいたま北店 743m
コンビニ:セイコーマート さいたま今羽店 115m
コンビニ:デイリーヤマザキ さいたま今羽町店 416m
ドラッグストア:ドラッグストアマツモトキヨシ さいたま本郷町店 294m
レストラン:松のや 大宮吉野町店(松屋併設) 164m
レストラン:マクドナルド 大宮本郷店 232m
郵便局:大宮本郷郵便局 687m
銀行:埼玉縣信用金庫宮原東支店 882m

物件概要

物件名 オーチェ今羽 305号室
物件所在地 埼玉県さいたま市北区吉野町1丁目3-3 周辺地図
交通機関 埼京線 大宮(埼玉)駅 バス15分 宮原二丁目北 バス停徒歩6分
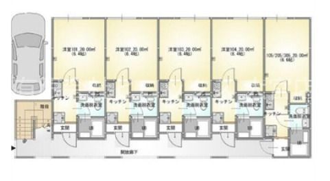
間取り詳細 洋室(6.6畳)
専有面積 20㎡
所在階/地上階数 3 / 3 部屋向き
建物構造 木造 築年月 新築
2026年2月
総戸数 15
賃料 6.0万円 管理費等 3000円
保証金 - 更新料 新賃料 1ヶ月
積増し敷金 - 積増し理由
その他一時金 ハウスクリーニング代(契約時):55,000円 その他費用
その他月次費用 駆けつけサポート費:1,100円
損害保険 有 損保名称:家財保険 料金:18000円 損保期間:24ヶ月 
契約形態 普通借家契約 期間 契約期間:2年
保証会社 必須 エポスカード①:初回賃料等総額40%、月次1%②エルズサポート:初回賃料等総額40%、月次手数料、年間更新料10,000円 保証人代行 必須
現況 未完成 入居時期 予定 2026年3月上旬

その他

取引態様 仲介先物 自社管理番号 0000011204
情報更新日 2026年2月23日 次回更新予定日 2026年3月25日
不動産会社コード 2788 物件管理コード 1126695143220000014549
  • ※間取りの「S」はサービスルーム(納戸)です。
  • ※QRコードは(株)デンソーウェーブの登録商標です。

資料請求などはこちら

問い合わせ(無料)

TEL: 048-660-5588

お問い合わせ番号: 0000011204

お問い合わせ先:有限会社ヒロックス 大宮店

所在地 : 埼玉県さいたま市北区宮原町3丁目226-3
TEL : 048-660-5588
免許番号 : 埼玉県知事(7)第17042号
加盟団体 : 全日本不動産協会

この部屋を見学予約

ホームへ戻る