ライオンズガーデン大宮東 507号室 さいたま市見沼区南中野[マンション]

ライオンズガーデン大宮東 507号室 さいたま市見沼区南中野[マンション]

マンション[さいたま市見沼区南中野]

ヒロックス「さいたま市の不動産」検索・紹介サイトです

  • 9:30~営業しております/定休日:毎週水曜、第1.3.5木曜日

物件詳細

ライオンズガーデン大宮東 507号室 さいたま市見沼区南中野[マンション]

 

ライオンズガーデン大宮東 507号室 さいたま市見沼区南中野[マンション] の物件詳細ページです。

物件種別: マンション

お問い合わせ番号:0000011298

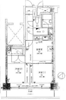
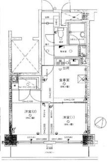
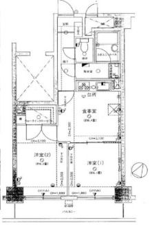
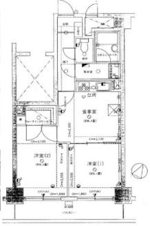
間取り(面積)

2DK

( 44.37㎡ )

賃料(管理費等)

7.2万円

( 1000円 )

交通: 東武野田線 大和田(埼玉)駅 徒歩31分

敷金/礼金: - / -

保証金/敷引/償却金: - / - / -

所在地: さいたま市見沼区南中野

築年月: 1993年7月

 

問い合わせ(無料)

TEL: 048-658-7788

お問い合わせ番号: 0000011298

QRコード

資料請求などはこちら

問い合わせ(無料)

TEL: 048-658-7788

お問い合わせ番号: 0000011298

スタッフからのコメント

防犯ガラス/防犯カメラ/オートロック/オートロックで安心・安全です 素敵な2DK 閑静な住宅街の便利な物件で快適にお過ごしいただけますよ。便利なガスコンロ設置可でお料理ラクラク インターホン/TVインターホン/エアコン/バス・トイレ別と設備が揃ったステキな物件で快適な生活はいかがでしょうか。お気軽に有限会社ヒロックスまでお問い合わせくださいませ。生活に便利なさいたま市見沼区。

セールスポイント

特徴 防犯カメラ,閑静な住宅街,2F以上,オートロック,防犯ガラス
設備 エレベーター,ガスコンロ設置可,バス・トイレ別,エアコン,インターホン,TVインターホン,ガス(都市ガス),下水(公共下水),水道(公営),電気
光ファイバー エレベーター 1基
天井高 空調 1基
駐車場 駐輪場:有 バイク置き場:有
周辺施設 スーパー:ヨークマート 326m
スーパー:マルヤ東新井店 326m
スーパー:スーパーバリュー見沼南中野店 326m
スーパー:業務スーパー東新井店 683m
コンビニ:セブンイレブン さいたま南中野北店 303m
コンビニ:サンクス 326m
コンビニ:ファミリーマート大宮御蔵店 326m
コンビニ:ウエルシア 473m

物件概要

物件名 ライオンズガーデン大宮東 507号室
物件所在地 埼玉県さいたま市見沼区南中野898 周辺地図
交通機関 東武野田線 大和田(埼玉)駅 徒歩31分
専有面積 44.37㎡
所在階/地上階数 5 / 7 部屋向き 南東
建物構造 鉄筋コンクリート 築年月 1993年7月
賃料 7.2万円 管理費等 1000円
保証金 - 更新料 新賃料 1ヶ月
積増し敷金 - 積増し理由
損害保険 有 料金:20000円 損保期間:24ヶ月 
契約形態 普通借家契約 期間 契約期間:2年
保証会社 必須 要保証会社加入総賃料の60%~ 保証人代行 必須
現況 居住中 入居時期 期日指定 2026年5月上旬
入居条件 二人(可)

その他

取引態様 仲介先物 自社管理番号 0000011298
情報更新日 2026年3月10日 次回更新予定日 2026年4月9日
不動産会社コード 2100888 物件管理コード 1126695143220000014643
  • ※間取りの「S」はサービスルーム(納戸)です。
  • ※QRコードは(株)デンソーウェーブの登録商標です。

資料請求などはこちら

問い合わせ(無料)

TEL: 048-658-7788

お問い合わせ番号: 0000011298

お問い合わせ先:有限会社ヒロックス 大宮東口店

所在地 : 埼玉県さいたま市大宮区大門町1丁目24-1-1
TEL : 048-658-7788
免許番号 : 埼玉県知事(7)第17042号
加盟団体 : 全日本不動産保証協会

この部屋を見学予約

ホームへ戻る