rh Nishiomiya(アールエイチ ニシオオミヤ) 302号室 さいたま市西区三橋[アパート]

rh Nishiomiya(アールエイチ ニシオオミヤ) 302号室 さいたま市西区三橋[アパート]

アパート[さいたま市西区三橋]

ヒロックス「さいたま市の不動産」検索・紹介サイトです

  • 9:30~営業しております/定休日:毎週水曜、第1.3.5木曜日

物件詳細

rh Nishiomiya(アールエイチ ニシオオミヤ) 302号室 さいたま市西区三橋[アパート]

rh Nishiomiya(アールエイチ ニシオオミヤ) 302号室 さいたま市西区三橋[アパート] の物件詳細ページです。

物件種別: アパート

お問い合わせ番号:0000011827

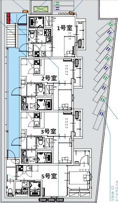
間取り(面積)

1LDK

( 28.08㎡ )

賃料(管理費等)

8.3万円

( 3000円 )

交通: 川越線 西大宮駅 徒歩10分

敷金/礼金: - / -

保証金/敷引/償却金: - / - / -

所在地: さいたま市西区三橋

築年月: 新築
2026年3月

ポイント

便利な洗濯機置場であると設備も充実しています。1LDKタイプ・28.08㎡の便利なお部屋で快適にお過ごしいただけます。築1年 木造 1LDK 素敵な物件のご紹介です。ガスコンロ/システムキッチン/2口コンロで楽しくお料理できます。川越線 西大宮駅まで徒歩10分で生活にとっても便利 生活に便利なさいたま市西区エリア。オートロックで入居後も安心して生活できるお部屋です。お部屋探しなら有限会社ヒロックス。

問い合わせ(無料)

TEL: 048-660-5588

お問い合わせ番号: 0000011827

QRコード

資料請求などはこちら

問い合わせ(無料)

TEL: 048-660-5588

お問い合わせ番号: 0000011827

セールスポイント

特徴 防犯カメラ,デザイナーズ,閑静な住宅街,最上階,オートロック,保証人(不要)
設備 敷地内ゴミ置き場,宅配BOX,システムキッチン,カウンターキッチン,2口コンロ,バス・トイレ別,浴室乾燥,シャワー,温水洗浄便座,洗面台,洗面所独立,エアコン,光ファイバー,ネット使用料不要,インターホン,TVインターホン,給湯,ガス給湯,24時間換気システム,フローリング,室内洗濯機置場,洗濯機置場,シューズボックス,玄関収納,収納有,ガス(都市ガス),下水(公共下水),水道(公営),電気
光ファイバー エレベーター
天井高 空調 1基
周辺施設 スーパー:マルエツ 西大宮駅前店 847m
コンビニ:ローソン さいたまシティハイツ三橋店 617m
ドラッグストア:ドラッグセイムス 大宮西店 440m
レストラン:牛国屋西大宮店 496m
レストラン:マクドナルド 16号指扇店 602m
郵便局:大宮三橋六郵便局 1078m

物件概要

物件名 rh Nishiomiya(アールエイチ ニシオオミヤ) 302号室
物件所在地 埼玉県さいたま市西区三橋6丁目1648 周辺地図
交通機関 川越線 西大宮駅 徒歩10分
川越線 指扇駅 徒歩28分
川越線 日進(埼玉)駅 徒歩35分
専有面積 28.08㎡
所在階/地上階数 3 / 3 部屋向き
建物構造 木造 築年月 新築
2026年3月
総戸数 12
賃料 8.3万円 管理費等 3000円
保証金 - 更新料 新賃料 1ヶ月
積増し敷金 - 積増し理由
その他一時金 クリーニング費用:55,000円 その他費用
損害保険 有 料金:2700円 
契約形態 普通借家契約 期間 契約期間:2年
保証会社 必須 利用必須【東京】総賃料の100%(支払手数料2%) 保証人代行 必須
現況 入居時期 期日指定 2026年4月18日
入居条件 高齢者(相談)

その他

取引態様 仲介先物 自社管理番号 0000011827
情報更新日 2026年3月30日 次回更新予定日 2026年4月29日
不動産会社コード 2788 物件管理コード 1126695143220000015172
  • ※間取りの「S」はサービスルーム(納戸)です。
  • ※QRコードは(株)デンソーウェーブの登録商標です。

資料請求などはこちら

問い合わせ(無料)

TEL: 048-660-5588

お問い合わせ番号: 0000011827

お問い合わせ先:有限会社ヒロックス 大宮店

所在地 : 埼玉県さいたま市北区宮原町3丁目226-3
TEL : 048-660-5588
免許番号 : 埼玉県知事(7)第17042号
加盟団体 : 全日本不動産協会

この部屋を見学予約

ホームへ戻る